レ・ジェイドシティ橋本Ⅲ4階部分
京王相模原線「橋本」駅徒歩5分
情報
| 所在地 | 神奈川県相模原市緑区橋本2丁目16ー16 | 交通 | 京王相模原線「橋本」駅5分 JR横浜線「橋本」駅徒歩6分 JR相模線「橋本」駅徒歩6分 |
|---|---|---|---|
| 価格 | 5,980万円 | 管理費 | 8,070円/月額 |
| 修繕積立金 | 5,470円/月額 | その他使用料 | インターネット利用料:1,166円/月 |
| 建物構造 | 鉄筋コンクリート造 | 建物階数 | 7階建 |
| 所在階 | 4階 | 総戸数 | 80戸 |
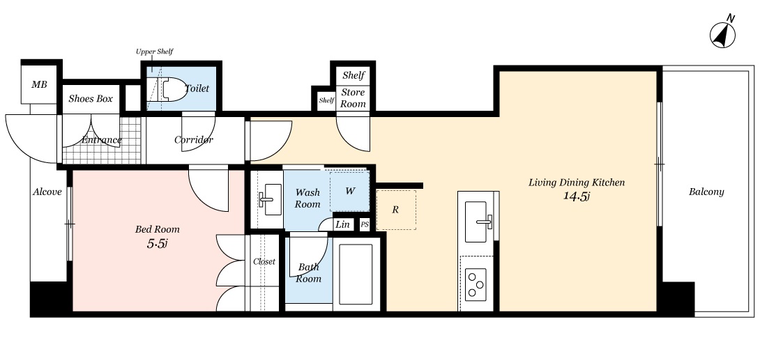
| 専有面積 | 45.60m2 (約13.79坪) | バルコニー面積 | 7.92m2 (約2.39坪) |
| バルコニー向き | 北東 | その他面積 | |
| 間取り | 1LDK | 築年月 | 2025年1月 |
| リフォーム | 土地権利 | 所有権 | |
| 用途地域 | 第二種住居地域 | 取引態様 | 仲介(媒介) |
| 管理会社 | ㈱エスコンリビングサービス | 管理形態 | 全部委託 |
| 駐車場 | 空有:13,000円~20,000円/月額 | その他設備 | |
| 周辺環境概要 | 現況 | 空室 | |
| 引渡 | 即可 | ||
| 備考 | |||
担当者紹介
小川 志樹
エスコンリビングサービス東京本社
宅地建物取引士、公認 不動産コンサルティングマスター、1級ファイナンシャル・プランニング技能士、
賃貸不動産経営管理士、不動産キャリア31年
「社会人歴=不動産業界経験」のキャリアになります。主に首都圏で活動しておりますが今までに札幌市、京都市の取引実績がございます。
お客様の大切な資産である不動産に関するご要望やご質問に対して全力でお応えいたします。お気軽にお問い合わせください。
お電話やメールでもご相談受付中。
お気軽にお問い合わせください。
■お電話でのお問い合わせ
(平日/9:00~18:00)
※時間外・土日祝日のお電話は
0800-888-0733
- 〈東日本・中部エリア〉
-
0120-972-848
- 〈西日本エリア〉
-
0120-881-772
■メールのお問い合わせ
ryutsu@esconls.co.jp
※氏名・住所・電話番号・ご相談内容を記載の上お送りください。